Skip to content Skip to sidebar Skip to footer

Baghouse Design Calculations

2

2

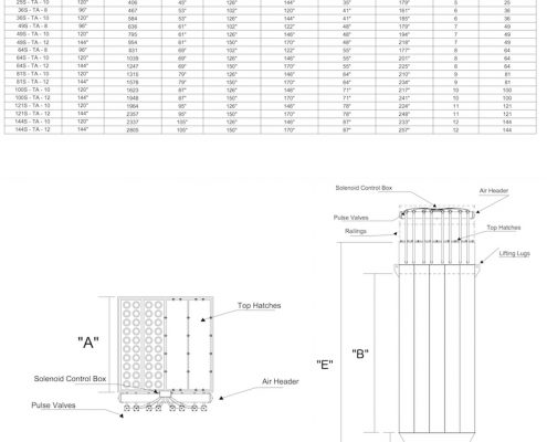
Baghouse design calculations. At SDC we have the Engineering expertise to design your dust collector to suit your needs and provide the structural calculations along with it for No Extra Charge. Calculate the number of bags required in a baghouse for a given process flow rate 4. Identify and describe the main components of a typical baghouse.

Design Considerations Interstitial Velocity Upward velocity of airparticulate between filters inside baghouse Measured in fpm feet per minute Determined by dividing airflow cfm by cross sectional area of filter housing less bag area Not to be confused with can velocity EXAMPLE. Typical values are about 4 Hz for frequency and 2 to 3 in. Total cloth area 90767 ft2.

Then Click on Calculate To Find the Cloth Area. Structural software to design and. During this second lecture in the Baghouse 101 series Bill Kurz of Sly Inc.

Calculate the gross air-to-cloth ratio the net air-to-cloth ratio and the netnet air-to-cloth ratio for a baghouse design. We continue from our last article where we reviewed the 4 key design variables of airflow in CFM static pressureresistance air velocity and air to cloth ratio. First calculate the total cloth area of your collector by calculating the total filter area of each filter bag diameter x 314 x length 144 for number of inches in a square foot filter cloth area and then multiply that figure by the total number of bags in the collector.

Baghouses are designed by considering a number of variablespressure drop filter drag air-to-cloth ratioand collection efficiency. Filtration area per bag. Cloth Area Sq.

Think back to high school math and the circumference of a circle. For ampli-tude half-stroke4 The tension is set to about 2 lbin. 8000cfm air required for dust control.

When we are finished we will know exactly how large of a baghouse we will need including how much filter area required along with our fan output x. The tension is set when bags are installed.

Design Process For Your Baghouse Dust Collection System Part 3 Of Design Guide Baghouse Com

Design Process For Your Baghouse Dust Collection System Part 3 Of Design Guide Baghouse Com

2

2

Pulse Jet Bag Filter Design Pulse Jet Bag Filter Design Flow Gas Rate Temperture Concentration Of The Dust In Gases Average Diameter Of The Particle Course Hero

Pulse Jet Bag Filter Design Pulse Jet Bag Filter Design Flow Gas Rate Temperture Concentration Of The Dust In Gases Average Diameter Of The Particle Course Hero

The Four Key Baghouse System Design Variables Part 2 Of Design Guide Baghouse Com

The Four Key Baghouse System Design Variables Part 2 Of Design Guide Baghouse Com

Maximizing Dust Collection System Efficiency Compressed Air Best Practices

Maximizing Dust Collection System Efficiency Compressed Air Best Practices

The Four Key Baghouse System Design Variables Part 2 Of Design Guide Baghouse Com

The Four Key Baghouse System Design Variables Part 2 Of Design Guide Baghouse Com

The Four Key Baghouse System Design Variables Part 2 Of Design Guide Baghouse Com

The Four Key Baghouse System Design Variables Part 2 Of Design Guide Baghouse Com

2

2

The Four Key Baghouse System Design Variables Part 2 Of Design Guide Baghouse Com

The Four Key Baghouse System Design Variables Part 2 Of Design Guide Baghouse Com

Evaluation Of The Can Velocity Effect On A Bag Filter Sciencedirect

Evaluation Of The Can Velocity Effect On A Bag Filter Sciencedirect

Maximizing Dust Collection System Efficiency Compressed Air Best Practices

Maximizing Dust Collection System Efficiency Compressed Air Best Practices

Bag Pulse Jet Bag Filter Design Calculation Xls

Bag Pulse Jet Bag Filter Design Calculation Xls

Bag Filter Design Calculations Equipment Nature

Bag Filter Design Calculations Equipment Nature

Baghouse Wikipedia

Baghouse Wikipedia

System And Ducting Design Scientific Dust Collectors

System And Ducting Design Scientific Dust Collectors

2

2

Filters For Pneumatic Conveying Dedusting After Pneumatic Transport

Filters For Pneumatic Conveying Dedusting After Pneumatic Transport

Bag Filter Calculation Sizing Your System For Performance

Bag Filter Calculation Sizing Your System For Performance

A Study Was Conducted To Determine The Relationshi Chegg Com

A Study Was Conducted To Determine The Relationshi Chegg Com

Enviroflo Engineering Enviroflo Engineering Pulse Jet Bag Filter

Enviroflo Engineering Enviroflo Engineering Pulse Jet Bag Filter

The Pulse Of Dust Collectors

The Pulse Of Dust Collectors

Bag Filter Design Calculations Equipment Nature

Bag Filter Design Calculations Equipment Nature

Baghouse Wikipedia

Baghouse Wikipedia

Https Encrypted Tbn0 Gstatic Com Images Q Tbn And9gctxozct5kkjz91f Mdz3e5le Dy Uhbyndb2eie5gnqihach1wo Usqp Cau

Https Encrypted Tbn0 Gstatic Com Images Q Tbn And9gctxozct5kkjz91f Mdz3e5le Dy Uhbyndb2eie5gnqihach1wo Usqp Cau

Bag Filter Calculation Sizing Your System For Performance

Bag Filter Calculation Sizing Your System For Performance

Baghouse Air To Cloth Ratio Overview Youtube

Baghouse Air To Cloth Ratio Overview Youtube

Baghouse Diagram Page 1 Line 17qq Com

Baghouse Diagram Page 1 Line 17qq Com

Solved A Baghouse Design Is Being Considered The Follow Chegg Com

Solved A Baghouse Design Is Being Considered The Follow Chegg Com

Enviroflo Engineering Enviroflo Engineering Pulse Jet Bag Filter

Enviroflo Engineering Enviroflo Engineering Pulse Jet Bag Filter

Baghouse Dust Collector New High Ratio Advanced Technology

Baghouse Dust Collector New High Ratio Advanced Technology

2

2

Baghouse Filters Scrubbers Ppt Video Online Download

Baghouse Filters Scrubbers Ppt Video Online Download

Iac The Meaning Of Air To Cloth Ratio In Baghouse Design Youtube

Iac The Meaning Of Air To Cloth Ratio In Baghouse Design Youtube

Baghouse Archives U S Air Filtration Inc

Baghouse Archives U S Air Filtration Inc

Air Blow Pipe Design For Bag Filter House Dust Bag Filter House Dust Collector Dust Filter Bag House Pulse Jet Bag Filter Housing Clean System Of Bag House Problem Of Dust Collector

Air Blow Pipe Design For Bag Filter House Dust Bag Filter House Dust Collector Dust Filter Bag House Pulse Jet Bag Filter Housing Clean System Of Bag House Problem Of Dust Collector

Bag Filter Design Manufactured Goods Gases

Bag Filter Design Manufactured Goods Gases

Baghouse Differential Pressure Why Important Baghouse Com

Baghouse Differential Pressure Why Important Baghouse Com

Baghouse Filter Calculator Industrial Accessories Company Iac

Baghouse Filter Calculator Industrial Accessories Company Iac

Baghouse Filters Scrubbers Ppt Video Online Download

Baghouse Filters Scrubbers Ppt Video Online Download

Solved A Bag House Is To Be Designed To Control Particula Chegg Com

Solved A Bag House Is To Be Designed To Control Particula Chegg Com

2

2

Baghouse Archives U S Air Filtration Inc

Baghouse Archives U S Air Filtration Inc

Baghouses And Baghouse Filters Selection Guide Engineering360

Baghouses And Baghouse Filters Selection Guide Engineering360

2

2

Getting The Dust Out Selecting A Filtration System Powderbulksolids Com

Getting The Dust Out Selecting A Filtration System Powderbulksolids Com

Baghouse Archives U S Air Filtration Inc

Baghouse Archives U S Air Filtration Inc

Solved Design A Pulse Jet Baghouse To Filter 25 000 Cfm O Chegg Com

Solved Design A Pulse Jet Baghouse To Filter 25 000 Cfm O Chegg Com

Nfpa Standards Combustible Dust Kice Industries

Nfpa Standards Combustible Dust Kice Industries

Https Encrypted Tbn0 Gstatic Com Images Q Tbn And9gcrqithbkthsmqoybxgoi11uojwr4kkeb9gndkashokpfhavmtam Usqp Cau

Https Encrypted Tbn0 Gstatic Com Images Q Tbn And9gcrqithbkthsmqoybxgoi11uojwr4kkeb9gndkashokpfhavmtam Usqp Cau

Total CFM 297716 ft3min.

8000cfm air required for dust control. During this second lecture in the Baghouse 101 series Bill Kurz of Sly Inc. Then Click on Calculate To Find the Cloth Area. Design Considerations Interstitial Velocity Upward velocity of airparticulate between filters inside baghouse Measured in fpm feet per minute Determined by dividing airflow cfm by cross sectional area of filter housing less bag area Not to be confused with can velocity EXAMPLE. Now we can begin calculating these variables for our new dust collection system. If you know the diameter of the bag multiply this diameter by 314 to get the circumference. Total cloth area 90767 ft2. Well-designed and operated baghouses have been shown to be capable of reducing overall particulate emissions to less than 005 gm 3 0010 grft 3 and in a number of cases to as low as 0002 to 0011 gm 3 0001 to 0005 grft 3. The tension is set when bags are installed.


Typical values are about 4 Hz for frequency and 2 to 3 in. We continue from our last article where we reviewed the 4 key design variables of airflow in CFM static pressureresistance air velocity and air to cloth ratio. Enter Bag Diameter π Length of Cages of Bags 144 sq. Calculate the gross air-to-cloth ratio the net air-to-cloth ratio and the netnet air-to-cloth ratio for a baghouse design. The first two parameters are part of the baghouse design and generally are not changed easily. Estimate the cloth area needed for a given gas process flow rate 3. Of bag circumference when bags are installed.

Post a Comment for "Baghouse Design Calculations"